Baugebiet_Sportplatz
(Alle Angaben erfolgen ohne Gewähr auf Vollständigkeit, Richtigkeit und Aktualität)
Bebauungsplan "Am Sportplatz"
Text und Bild: Bromer Blatt 2019/21 Seite 19-20 vom 24.05.2019
"Bebauungsplan "Am Sportplatz" Hoitlingen in der Gemeinde Tiddische
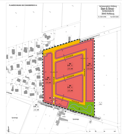
Der Rat der Gemeinde Tiddische hat in seiner Sitzung am 16.12 2014 die Aufstellung des Bebauungsplanes „Am Sportplatz" im OT Hoitlingen beschlossen.Hiermit erfolgt die Bekanntmachung, dass zu o.a. Bebauungsplan die frühzeitige Öffentlichkeitsbeteiligung gemäß § 3 (1) BauGB durchgeführt wird. Sie findet statt in der Zeit vom 03.06.2019 bis *m 14.06.2019. Zudem wird bekannt gemacht, dass der Entwurf des Bebauungsplanes mit Begründung gemäß § 3(2) BauGB öffentlich ausgelegt wird. Der Rat der Gemeinde Tiddische hat in seiner Sitzung am 29.04.2019 dem Entwurf zu o.g. Bebauungsplan, bestehend aus der Planzeichnung und der Entwurfsbegründung einschließlich Umweltbericht zugestimmt und die Durchführung der öffentlichen Auslegung gem. § 3 Abs. 2 BauGB sowie die gleichzeitige Beteiligung der Behörden und sonstigen Träger öffentlicher Belange gem. § 4 Abs. 2 BauGB beschlossen. Die Geltungsbereiche des Bebauungsplanes sind in dem nachfolgend abgedruckten Lageplan durch eine schwarze Linie umrandet.
Folgende umweltbezogene Informationen sind zu dem Bauleitplan verfügbar:
• Umweltbericht, September 2018, zur Bewertung des Umweltzustandes und der Umweltauswirkungen auf die folgenden Schutzgüter:
- „Mensch und Gesundheit" (unerhebliche Auswirkungen)- „Pflanzen, Tiere und biologische Vielfalt" (erhebliche Auswirkung aufgrund Verlust von Lebensräumen),- „Fläche" (wenig erhebliche Auswirkung aufgrund moderater Versiegelung)- „Boden" (erhebliche Auswirkungen aufgrund von Beeinträchtigung und Verlust von Bodenfunktionen)- „Wasser" (erhebliche Auswirkungen aufgrund Verlust von Ober-flächenwasserretention und Reduzierung der Grundwasserneubildungsrate)- „Luft und Klima" (wenig erhebliche Auswirkungen)- „Landschaft" (wenig erhebliche Auswirkungen)- „Kultur- und sonstige Sachgüter" (unerhebliche Auswirkungen) sowie deren Wechselwirkungen. Entwicklungsprognosen sowie geplante Maßnahmen zur Vermeidung, Verringerung und zum Ausgleich der erheblich nachteiligen Umweltauswirkungen werden dargestellt.
• Faunistischer Fachbeitrag zu Brutvögeln und Fledermäusen zum Be-bauungsplan „Am Sportplatz", November 2016
• Fachgutachten / Grünordnungsplan zur Eingriffsregelung zum Be-bauungsplan „Am Sportplatz", August 2018
• Stellungnahmen und Hinweise seitens der Träger öffentlicher Belange zu folgenden Themen:
- Hinweis auf das Einzugsgebiet des Wasserwerkes Eischott- Berücksichtigung agrarstruktureller Belange bei den naturschutz-fachlichen Kompensationsmaßnahmen- Raumordnerische Belange - Hinweise zum Umfang der artenschutzrechtlichen Prüfung
Der Entwurf des Bebauungsplanes, die dazugehörige Begründung mit Umweltbericht und die wesentlichen vorliegenden umweltbezogenen Informationen und Stellungnahmen liegen gem. § 3 Abs. 2 BauGB in der Zeit vom24.06.2019 bis einschließlich 26.07.2019 im Gemeindebüro der Gemeinde Tiddische, Bürgerhaus, Gorering 18, 38473 Tiddische öffentlich aus. Die Unterlagen können dort zu den allgemeinen Öffnungszeiten eingesehen werden. Während der Auslegungs-frist können Stellungnahmen schriftlich vorgebracht oder Mo., Di. und Do. von 08.00 bis 12.00 Uhr im Gemeindebüro der Gemeinde Tiddische zur Niederschrift erklärt werden. Die Unterlagen können zusätzlich während der Bürgermeistersprechstunde am Montag in der Zeit von 18.15 Uhr - 19.15 Uhr im Dorfgemeinschaftshaus in Hoitlingen und von 19.30 Uhr - 20.30 Uhr im Gemeindebüro der Gemeinde Tiddische eingesehen werden. Die gleichen Orte gelten für die frühzeitige Öffentlichkeitsbeteiligung. Die im Rahmen vorangegangener Verfahrensschritte und Auslegungen eingegangenen Stellungnahmen werden selbstverständlich in der Abwägung berücksichtigt. Nicht fristgerecht abgegebene Stellungnahmen können gem. § 3 Abs. 2 und § 4a Abs. 6 BauGB bei der Beschlussfassung über die Bauleitpläne unberücksichtigt bleiben. Es wird ebenfalls darauf hingewiesen, dass ein Antrag nach § 47 der Verwaltungsgerichtsordnung (VwGO) unzulässig ist, soweit mit ihm Einwendungen geltend gemacht werden, die vom Antragsteller im Rahmen der Auslegung nicht oder verspätet geltend gemacht wurden, aber hätten geltend gemacht werden können.
(alle Angaben erfolgen ohne Gewähr auf Vollständigkeit, Richtigkeit und Aktualität)
Bebauungsplan "Am Sportplatz"
Text: Bromer Blatt 2020/ Ausgabe 41 Seite 12-13 vom 09.10.2020
"Bebauungsplan "Am Sportplatz" Hoitlingen in der Gemeinde Tiddische
„Am Sportplatz“ Gemeinde Tiddische, OT Hoitlingen, Landkreis Gifhorn
Der Rat der Gemeinde Tiddische hat mit Beschluss vom 04.06.2020 den Bebauungsplan „Am Sportplatz““ als Satzung gemäß § 10 Baugesetzbuch (BauGB) beschlossen. Gemäß § 10 Abs. 3 BauGB wird der Bebauungsplan bekanntgemacht.
Die Lage der Geltungsbereiche des Bebauungsplanes ist in dem nachfolgend abgedruckten Lageplan jeweils durch eine schwarze Linie umrandet.
Mit der Bekanntmachung im Amtsblatt des Landkreises Gifhorn tritt der Bebauungsplan in Kraft.
Der Bebauungsplan einschließlich seiner Begründung kann in der Verwaltung der Gemeinde Tiddische, Gorering 18 (Bürgerhaus) in 38473 Tiddische während der Öffnungszeiten eingesehen werden und jedermann kann über den Inhalt Auskunft verlangen.
Eine Verletzung von Verfahrens- und Formvorschriften wie in § 214 Abs.1 Nr. 1 bis Nr.3 BauGB bezeichnet sowie Mängel der Abwägung sind unbeachtlich, wenn sie nicht innerhalb von einem Jahr seit dieser Bekanntmachung schriftlich gegenüber der Gemeinde geltend gemacht worden sind.
Dabei ist der Sachverhalt, der die Verletzung oder den Mangel begründen soll, darzulegen (§ 215 Abs.1 BauGB).
Auf die Vorschriften des § 44 Abs. 3 Satz 1 und 2 sowie Abs. 4 BauGB über die fristgemäße Geltendmachung etwaiger Entschädigungsansprüche für Eingriffe in eine bisher zulässige Nutzung durch diesen Bebauungsplan und über das Erlöschen von Entschädigungsansprüchen wird hingewiesen.
Veröffentlicht im Amtsblatt des Landkreises Gifhorn Nr. 9/2020 vom 30.09.2020
Auf die Vorschriften des § 44 Abs. 3 Satz 1 und 2 sowie Abs. 4 BauGB
Quelle: Bromer Blatt
Hier kann das Amtsblatt eingesehen werden (Seite 506-507)
Veröffentlichung der Pläne war am 29. April 2019 bei der 17. Gemeinderatssitzung
Downloads
Mit freundlicher Unterstützung und Genehmigung
der Gemeinde Tiddische
&
dipl.-ing. carsten meier, m.sc.
architekt & stadtplaner bda
dgnb auditor für stadt- und gewerbequartiere




